
Σχεδιασμός εσωτερικού χώρου μικρού Διαμερίσματος στην Καρδίτσα
Interior Design of Small Apartment in Karditsa






Apartment in Karditsa
Before
renovation
H υπάρχουσα κατάσταση, πριν αναλάβω την μελέτη εσωτερικού χώρου.
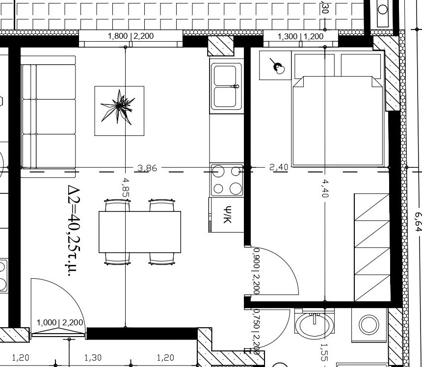
Η κάτοψη πριν από τις επεμβάσεις μου έχει σοβαρά προβλήματα. Ουσιαστικά, δεν έχει μελετηθεί καθόλου!

Apartment in Karditsa
Best
solution
Η αρχική μου πρόταση, που έλυνε όλα τα προβλήματα και αναβάθμιζε το χώρο, αλλά απαιτούσε την καθαίρεση του ενδιάμεσου τοίχου και τη μεταφορά του μερικά εκατοστά. Oπότε δεν επιλέχθηκε από τον εργολάβο και τον ιδιοκτήτη, δεδομένου ότι το διαμέρισμα βρισκόταν σε τελικό στάδιο όταν μου ανατέθηκε η μελέτη.

Apartment in Karditsa
After
renovation
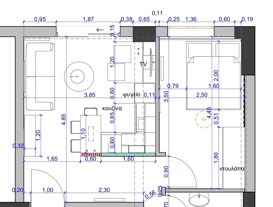
Η τελική πρότασή μου, στην οποία βασίστηκε η ανακαίνιση, κρατώντας τον ενδιάμεσο τοίχο.
Στο υπνοδωμάτιο δυστυχώς δεν γινόταν να αλλάξει η διάταξη του κρεβατιού και της ντουλάπας. Οπότε επινοήθηκε ένα κόλπο με καθρέφτη για να ανασάνει το στενό, μακρόστενο δωμάτιο.


αρχιτεκτονικές υπηρεσίες
χρωματικές υπηρεσίες
συμβουλευτικές υπηρεσίες
υπηρεσίες branding
blogs & youtube channel
Μείνετε σε επαφή!
Άρθρα, videos και συμβουλές για την Ψυχολογία του Χώρου και του Χρώματος κάθε μήνα στο inbox σας!
Mania Mavridou _ Architect & Color Consultant
L. Karayianni 4 _ 55236 Panorama
Thessaloniki _ Greece
+30 2310 345384
© 2025 DesignMania & Mania Mavridou
Το περιεχόμενο του ιστολογίου αποτελεί πνευματική ιδιοκτησία.
Απαγορεύεται η αναδημοσίευση του περιεχομένου ή μέρους αυτού χωρίς έγγραφη άδεια.
Νόμος πνευματικής ιδιοκτησίας 2121/1993.
Πολιτική απορρήτου - Πολιτική cookies
designed by DesignMania with Semplice